Services
Architectural Design
Interior Design
Web & Graphic Design
Project Management
Works
Courses
About
←
Previous:
Mitsu Bank Executive Office
Next:
Housing in Senesenevler
→
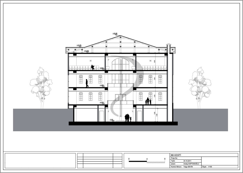
Sapanca Town Museum
Concept Design
Year:
2012
Client:
Setenart Construction & Consultancy
Status:
Presented
Location:
Sakarya / Turkey